EXTENSIONS & RENOVATIONS TO EXISTING MID TERRACE DWELLING AT SEAVIEW TERRACE, RATHMULLAN, CO. DONEGAL
As seen on the Great House Revival…….Extension & Renovations to Existing Mid Terrace Dwelling at Seaview Terrace, Rathmullan, Co. Donegal…..
Summary:
The Great House Revival, Episode 6 2025, presented by Hugh Wallace Architects / TV Presenter featured a Project that I, Bill Steele Architect MRIAI of Cullinane Steele Architects (Irl) was involved in from the initial Design & Planning through the Construction Process to Completion. The Project throughout was aided by the tireless work & enthusiasm of the Client who surrounded himself by skilled crafts people and a superb interior designer all of whom contributed significantly to its success.
My task as Architect was to add to the character of this charming mid terrace urban Georgian style dwelling in the coastal town of Rathmullan along the shores of Lough Swilly, Co. Donegal. The property had a distinct lack of a functioning kitchen / dining / living /utility space and was in need of renovation throughout. The site was narrow and the aim was to utilise the generous rear garden and its appealing aspect. It had the advantage of good length and was not generally overlooked. I was entrusted to create a bright and airy social space connected to the rear garden suiting the lifestyle of the Client, whilst having a distinctly contemporary appearance that complimented the existing dwelling and reflected the personality of the Owner, also providing for the sun orientation across the site….and to create fleeting views from within of some of the historic buildings within the town landscape……..this was a great project to work on and I feel it exceeded all expectations.
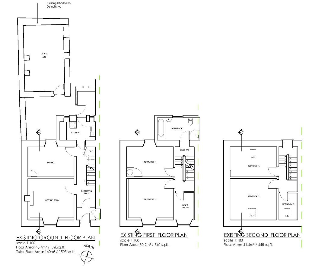
Existing Dwelling – Survey Drawing / Photos:



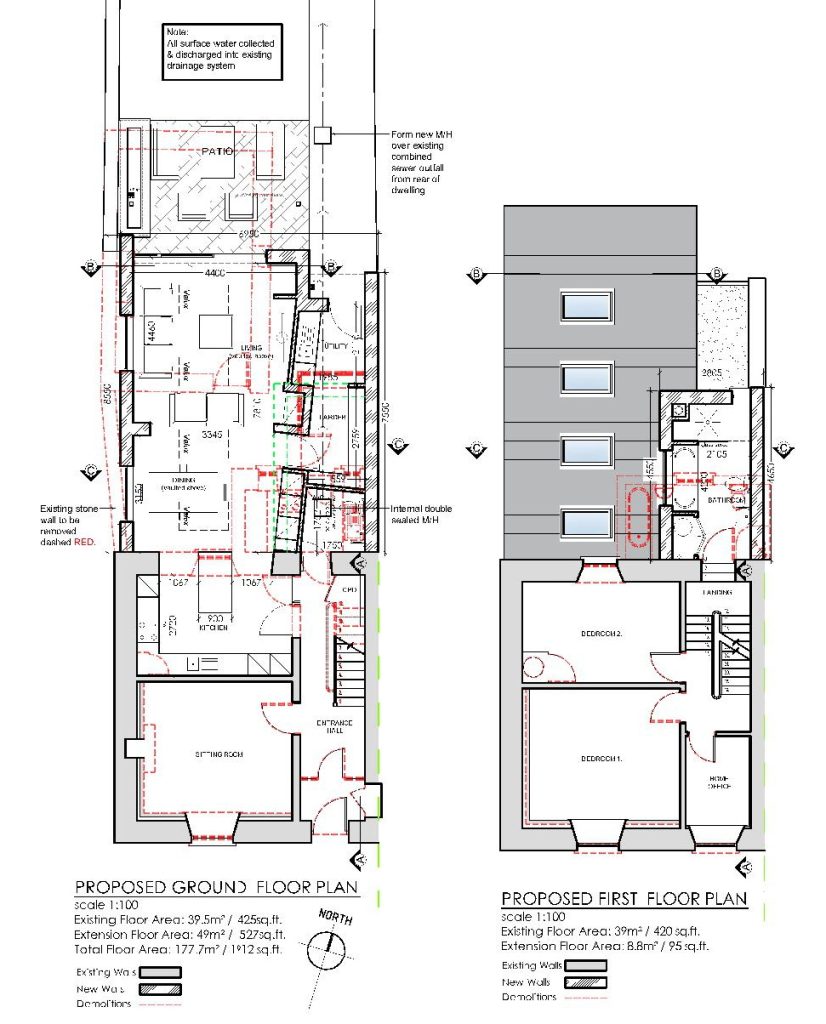
Proposed Extension – Drawings:


There was a great sense of pride and achievement that the Project was selected and featured by Hugh Wallace Architect / TV Personality on the Great House Revival RTE Programme……..click below
Completed Images:






